1. Accueil
  2. Achat
  3. Achat Appartement
  4. Achat Appartement Finistere (29)
  5. Achat Appartement BREST (29200)

Appartement T3 à vendre 3 pièces - 71,19 m2 BREST - 29

Ref : 2396

394 900 €

  • Honoraires charge vendeur
Appartement T3 à vendre - 3 pièces - 71,19 m2 - Brest - 29 - BRETAGNE
Appartement T3 à vendre - 3 pièces - 71,19 m2 - Brest - 29 - BRETAGNE
Appartement T3 à vendre - 3 pièces - 71,19 m2 - Brest - 29 - BRETAGNE
Appartement T3 à vendre - 3 pièces - 71,19 m2 - Brest - 29 - BRETAGNE
Appartement T3 à vendre - 3 pièces - 71,19 m2 - Brest - 29 - BRETAGNE
Appartement T3 à vendre - 3 pièces - 71,19 m2 - Brest - 29 - BRETAGNE
Appartement T3 à vendre - 3 pièces - 71,19 m2 - Brest - 29 - BRETAGNE
Appartement T3 à vendre - 3 pièces - 71,19 m2 - Brest - 29 - BRETAGNE
Envoyer un message
Message
Envoyer ce bien à un ami

Description

Découvrez ce bel appartement situé en plein cœur du centre ville de BREST ! Ce bien fait parti d'un programme neuf situé dans le secteur de la rue Yves collet !

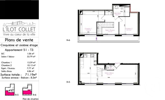
Au 5ème et 6ème étage de cette future copropriété, se présente un appartement de type T3 DUPLEX comprenant une cuisine ouverte sur une grande pièce de vie, deux chambres, un espace mezzanine/bureau ainsi une salle d'eau avec WC séparé.

Un balcon complète ce bien rare en hyper centre de la ville.

Profitez de tout confort avec la présence d'un ascenseur, d'une cave privative ainsi que d'une place de parking privatisée (bail locatif pour une durée de 15 ans avec la société Q-PARK).

Dans ce programme neuf vous pourrez profiter d'un choix des sols, personnalisation de la cuisine et meuble de salle d'eau,...
N'attendez plus pour venir échanger avec nous sur ce projet, aussi bien intéressant pour de la résidence principale que pour un investissement.

Plus d'informations chez Century 21 Associés Conseils Immobilier.

Localisation

Laissez-nous vos coordonnées pour obtenir la localisation

Envoyer

Afficher sur la carte :

Demander la localisation

Vue globale

  • Surface totale : 71,2 m2
  • Surface habitable : 71,2 m2
  • Type d'appartement : T3
  • Étage : 5ème
  • Nombre de pièces : 3
    • Entrée
    • Séjour (33,8 m2)
    • Chambre (13,6 m2)
    • Chambre (10,1 m2)
    • Cuisine
    • Salle d'eau (4,9 m2)
    • WC (1,1 m2)
    • Bureau (7,8 m2)
  • Année construction : 2027

Équipements

Les plus

Accès personnes handicapées

P

Parking couvert

Rue

Général

  • Parking couvert : 1 place(s)
  • Surface cave : 8,2 m2
  • Chauffage : Individuel radiateur gaz
  • Eau chaude : Chaudière gaz
  • Toiture : Terrasse
  • Ascenseur
  • Balcon
  • Air conditionné, videophone
  • Cable

À savoir

  • Travaux récents : APPARTEMENT EUF EN VEFA - LIVRAISON COURANT / FIN 2027

Pour consulter les barèmes d'honoraires de l'agence, cliquez ici

Les informations sur les risques auxquels ce bien est exposé sont disponibles sur le site Géorisques :

Copropriété

  • Nombre de Lots : 12
  • Charges courantes par an : 1,0 €
  • Pas de procédure en cours

Les performances énergétiques

Non soumis au DPE

Ce bien est proposé par l'agence CENTURY 21 Associés Conseils Immobilier

CENTURY 21 Associés Conseils Immobilier

CENTURY 21 Associés Conseils Immobilier

20 rue Robespierre

29200 BREST

02 98 00 07 07
qualitelis Votre agence est notée
Achat Vente
9,0/10

Nos offres

Notre agence immobilière à Brest vous propose :

Calculer vos mensualités
de remboursement

Montant du prêt :
Durée du crédit
Taux d'intérêt (hors assurances)

vos mensualités

- € par mois

(Dont -€ d’assurances)

Crédit immobilier simulation
et premiers calculs

vous êtes acquéreur et vendeur,

Vous êtes acquéreur et vendeur, nos agents immobiliers peuvent vous accompagner dans vos projets

Contacter l'agence

Envoyer à un ami

Envoyer

Créer votre alerte

Rappel de vos critères de recherche :

Erreur dans les critères envoyés

Limite d'alertes atteinte

Cette alerte existe déjà

Cette alerte est déjà enregistrée pour cette adresse email. Vous continuerez à recevoir les biens correspondant à vos critères.

Une erreur est survenue

Merci de réessayer ultérieurement.

Votre alerte a été créée

Vous recevrez les biens correspondant à vos critères.

logo vente privées

48h

d’avance sur
le marché

Prenez un temps d’avance sur le marché en profitant gratuitement des Ventes Privées CENTURY 21

Si ce n’est déjà fait, allez compléter le profil de votre compte afin de pouvoir recevoir en avant-première des biens exclusifs, réservés à nos clients pendant les 48 premières heures suivant leur commercialisation.

Nos agences proposent régulièrement des biens comme celui que vous cherchez

Ne ratez pas une opportunité, on vous alerte en priorité !

Êtes-vous actuellement propriétaire de votre bien ?
Créer une alerte
Je souhaite être alerté
Voir les biens correspondants

Envoyer un message :

Envoyer